Aller à :

  • Aller à la recherche
  • Aller au menu principal
  • Aller au contenu
0
  • Accueil
  • Ventes
    • Appartements
    • Villas
    • Terrains
    • Programmes neufs
    • Autres
  • Locations
    • Appartements
    • Villas
  • Alerte e-mail
  • ESTIMATIONS
  • Notre agence
0
  1. Accueil
  2. Vente
  3. Canet plage
  4. Appartement
  5. T3
  6. T3 au 4eme etage avec ascenseur et vue degagee
  • Acheter De l'ancien
Créez votre alerte e-mail
Dans un rayon de
Budget
Mini €
Maxi €

    Faites estimer votre bien par un professionnel

    Estimer votre bien
    Réf : A306 2025
    Appartement
    T3 au 4ème étage avec ascenseur et vue dégagée
    Nombre de pièces 3
    Nombre de chambres 2
    Salle d'eau 1
    305 900 €

    T3 au 4ème étage avec ascenseur et vue dégagée Canet plage (66140)

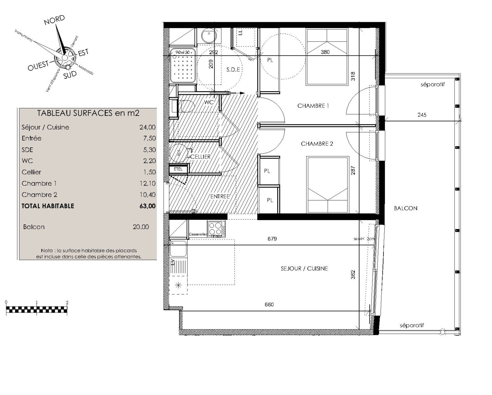
    A découvrir à Canet en Roussillon, à 10 minutes à pied de la plage, cet appartement de type T3 dans une résidence de standing. Composé d'un grand séjour cuisine, deux chambres, une salle d'eau. Le séjour et une chambre ouvrent sur une terrasse de 20m² exposé EST.

    Construction de qualité aux normes en vigueur. Un appartement dans un nouveau quartier à proximité de tous les services pour résider à l'année ou investir. Normes RT 2012, place de parking inclus dans le prix. Bien soumis au statut de la copropriété. Agence LAVILLE IMMO, Pierre DORNIER, "EI" - RSAC N°828 832 824. Ville du greffe : PERPIGNAN Bien soumis au statut de la copropriété. Nombre de lots principaux : 44

    • Général
    • Détails +
    • Copropriété
    • Financier
    • DPE
    • Quartier
    Caractérisque Valeurs
    Code postal 66140
    Surface habitable (m²) 63 m²
    Surface loi Carrez (m²) 63 m²
    Nombre de chambre(s) 2
    Nombre de pièces 3
    Etage 3
    Ascenseur OUI
    Vue Port de plaisance
    Caractérisque Valeurs
    Nb de salle d'eau 1
    Cuisine Américaine
    Type de cuisine SEMI-EQUIPEE
    Mode de chauffage Electrique, Electrique
    Type de chauffage Convecteur, Convecteur
    Format de chauffage Individuel, Individuel
    Visiophone OUI
    Terrasse OUI
    Exposition Est
    Année de construction 2025
    Caractérisque Valeurs
    Copropriété OUI
    Lot n° 0306
    nombre de lots 44
    plan de sauvegarde NON
    Caractérisque Valeurs
    Prix de vente 305 900 €
    Les honoraires d'agence seront intégralement à la charge du vendeur  
    DPE GES
    • Commerces et santé
    • Loisirs
    • Ecoles
    • Transports
    • Pratique
    Cette offre
    vous intéresse

    * champs obligatoires

    Les informations recueillies sur ce formulaire sont enregistrées dans un fichier informatisé par La Boite Immo agissant comme Sous-traitant du traitement pour la gestion de la clientèle/prospects de l'Agence / du Réseau qui reste Responsable du Traitement de vos Données personnelles.
    La base légale du traitement repose sur l’intérêt légitime de l'Agence / du Réseau.
    Elles sont conservées jusqu'à demande de suppression et sont destinées à l'Agence / au Réseau.
    Conformément à la loi « informatique et libertés », vous pouvez exercer votre droit d'accès aux données vous concernant et les faire rectifier en contactant l'Agence / le Réseau.
    Si vous estimez, après avoir contacté l'Agence / le Réseau, que vos droits « Informatique et Libertés » ne sont pas respectés, vous pouvez adresser une réclamation à la CNIL.
    Nous vous informons de l’existence de la liste d'opposition au démarchage téléphonique « Bloctel », sur laquelle vous pouvez vous inscrire ici : https://www.bloctel.gouv.fr 
    Dans le cadre de la protection des Données personnelles, nous vous invitons à ne pas inscrire de Données sensibles dans le champ de saisie libre
    Ce site est protégé par reCAPTCHA, les Politiques de Confidentialité et les Conditions d'Utilisation de Google s'appliquent.

    Partager le bien
    Nos outils
    Imprimer Imprimer
    Calculatrice financière

    * Champ obligatoire

    Partager l'annonce

    * champs obligatoires

    Les informations recueillies sur ce formulaire sont enregistrées dans un fichier informatisé par La Boite Immo agissant comme Sous-traitant du traitement pour la gestion de la clientèle/prospects de l'Agence / du Réseau qui reste Responsable du Traitement de vos Données personnelles.
    La base légale du traitement repose sur l’intérêt légitime de l'Agence / du Réseau.
    Elles sont conservées jusqu'à demande de suppression et sont destinées à l'Agence / au Réseau.
    Conformément à la loi « informatique et libertés », vous pouvez exercer votre droit d'accès aux données vous concernant et les faire rectifier en contactant l'Agence / le Réseau.
    Si vous estimez, après avoir contacté l'Agence / le Réseau, que vos droits « Informatique et Libertés » ne sont pas respectés, vous pouvez adresser une réclamation à la CNIL.
    Nous vous informons de l’existence de la liste d'opposition au démarchage téléphonique « Bloctel », sur laquelle vous pouvez vous inscrire ici : https://www.bloctel.gouv.fr 
    Dans le cadre de la protection des Données personnelles, nous vous invitons à ne pas inscrire de Données sensibles dans le champ de saisie libre
    Ce site est protégé par reCAPTCHA, les Politiques de Confidentialité et les Conditions d'Utilisation de Google s'appliquent.

    Détail des diagnostics énergétiques
    DPE GES

    Montant estimé des dépenses annuelles d'énergie pour un usage standard est compris entre 377 € et 500 € . Prix moyens des énergies indexés sur les années 2021, 2022 et 2023 (abonnements compris).

    Partager avec vos proches

    Facebook Facebook
    Messenger Messenger
    Twitter Twitter
    WhatsApp WhatsApp
    LinkedIn LinkedIn
    Copier le lien Copier le lien
    Se connecter
    Espace propriétaire
    Page d'accueil
    Adhérents

    © 2025 | Tous droits réservés | Traduction powered by Google |

    • Nos honoraires
    • Plan du site
    • Mentions légales
    • Admin
    • Nos liens
    • Politique RGPD

    Comme beaucoup, notre site utilise les cookies

    On aimerait vous accompagner pendant votre visite. En poursuivant, vous acceptez l'utilisation des cookies par ce site, afin de vous proposer des contenus adaptés et réaliser des statistiques !

    Paramétrer

    Statistiques de visites

    Pour améliorer votre expérience, on a besoin de savoir ce qui vous intéresse !
    Les données récoltées sont anonymisées.

    ?

    Google Analytics

    requis
    ?

    Google Tag Mananger

    requis
    En savoir plus
    • Acheter De l'ancien
    Créez votre alerte e-mail
    Dans un rayon de
      Budget
      Mini €
      Maxi €
      Surface
      Mini m²
      Maxi m²

      Particularites

      Equipements

      Exposition

      Afficher les biens

      Faites estimer votre bien par un professionnel

      Estimer votre bien